Gotham Memorial Hall (and Recreation Ground Trust)
Toggle Navigation
Latest News
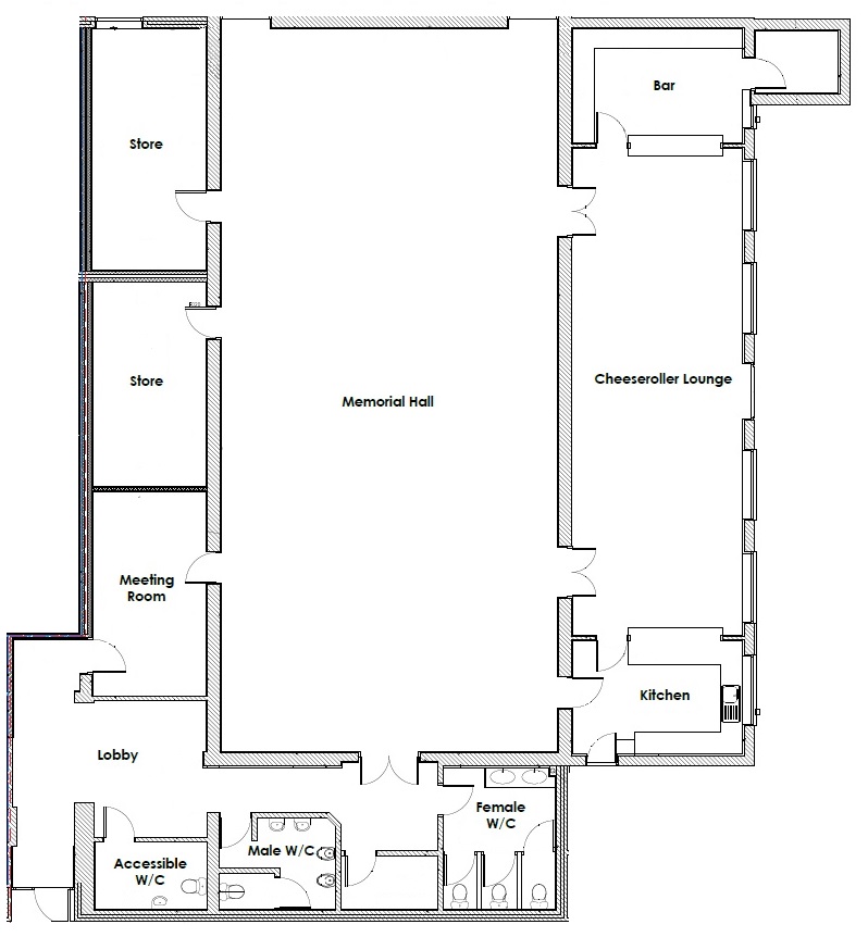
Building Layout
The Main Hall
The Cheeseroller Room
The Weldon Meeting Room
Hire Rates
Hall Users
History
Raise Funds
Sports Arena
Photo Gallery
Directions
Contact Us
Search for:
Building Layout
This is the layout of the building: